3 Bedrooms House - Semi-Detached for Sale

Clipstone Road East, Forest Town, Mansfield

£162,000

  • ** SHARED OWNERSHIP PURCHASE **
  • Three Storey Semi Detached Home
  • Three Bedrooms (One En-Suite)
  • Gardens & Off Road Parking
  • Ideal First Time Purchase
  • Council Tax Band & EPC Rating B

Full Description

** SHARED OWNERSHIP PURCHASE **

(Price shown is 60%% purchase. Full purchase price would be £270,000)

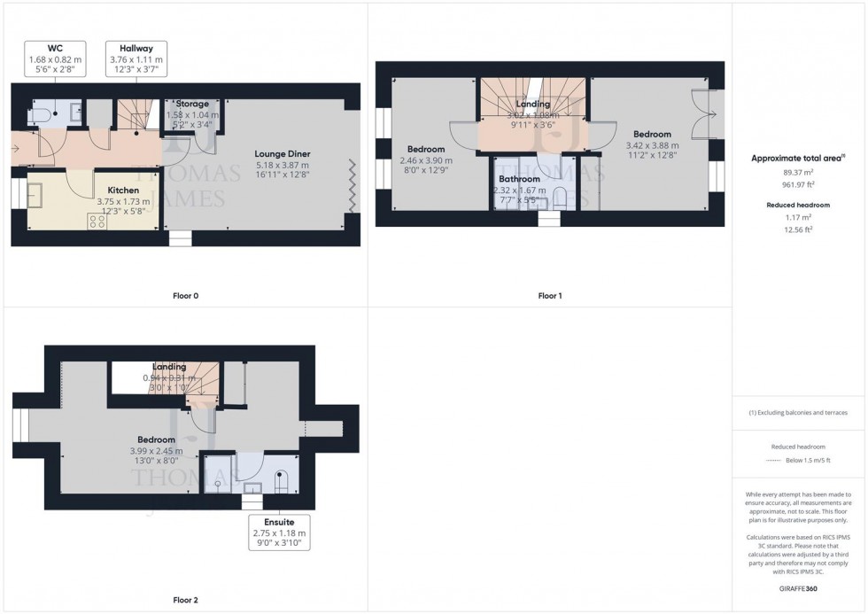
This brand new Stancliff Homes (Sherwood design) semi detached property provides spacious accommodation arranged over three floors including; an entrance hallway, a fitted kitchen with a range of appliances, a lounge/dining room with bi-fold doors opening to the rear garden, plus a wc on the ground floor, two bedrooms and the family bathroom on the first floor, and the master suite (complete with a dressing area, and an en-suite shower room) on the second floor.

Benefiting from gas central heating and double glazing, the property also has off road parking for up to two vehicles.

Situated within easy reach of facilities in Forest Town, and Clipstone, the property is close to main road routes giving access to Mansfield and Nottingham.

Offered to the market on a Shared Ownership Purchase basis, the property will make an ideal first home.

ACCOMMODATION

The entrance door opens to the entrance hall. The entrance hall has stairs off to the first floor, a radiator, a storage cupboard/comms room, and doors into the kitchen, the lounge/dining room, and the ground floor wc.

The kitchen has a range of wall and base units, with under cabinet lighting and roll edge work surfaces, a stainless steel sink and drainer unit with a mixer tap over, and built in appliances including a Zanussi washing machine, a Zanussi half size dishwasher, a fridge, a freezer, a gas cooker, and an electric hob. The Baxi central heating boiler is housed here, and there are ceiling spot lights.

The ground floor wc is fitted with a wc, and a wash hand basin. There is a heated towel rail, and tiled flooring.

The lounge/dining room has laminate flooring, an under stairs storage cupboard, a window to the side, and bi-fold doors opening to the rear garden.

On reaching the first floor, the landing has stairs off to the second floor, and doors into two bedrooms, and the family bathroom.

Bedroom two has a Juliette style balcony overlooking the rear garden, a range of built in wardrobes, a ceiling light point, and a radiator.

The family bathroom is fitted with a bath with a shower and shower screen over, a wc, and a wash hand basin.

Bedroom three has two windows to the front, a ceiling light point, and a radiator.

The master bedroom suite is situated on the second floor. There is a window to the front, a range of built in wardrobes, a DRESSING AREA, and a door to the en-suite shower room. The en-suite shower room is fitted with a shower cubicle, a wash hand basin, and a wc.

OUTSIDE

To the rear of the property the garden is fully enclosed and includes a lawned area, and a patio seating area.

There is off road parking for two vehicles.

Shared Ownership Details

When you are looking for shared ownership homes, you should always check the Key Information Document to see which model covers that specific home.
When you buy a home through shared ownership, you enter into a shared ownership lease. The lease is a legal agreement between you (the ‘leaseholder’) and the landlord.
It sets out the rights and responsibilities of both parties.

Before committing to buy a shared ownership property, you should take independent legal and financial advice.
Details will be given on request.
To confirm a £500.00 reservation fee following successful application

Leasehold Information

There is a £250 Service charge
No Ground Rent is payable

Council Tax Band

TBC

Referral Arrangement Note

Thomas James Estate Agents always refer sellers (and will offer to refer buyers) to Premier Property Lawyers, Ives & Co, and Curtis & Parkinson for conveyancing services (as above). It is your decision as to whether or not you choose to deal with these conveyancers. Should you decide to use the conveyancers named above, you should know that Thomas James Estate Agents would receive a referral fee of between £120 and £240 including VAT from them, for recommending you to them.

Floorplan

Floorplan for Clipstone Road East, Forest Town, Mansfield

EPC

EPC

Arrange A Viewing