2 Bedrooms House - End Terrace for Sale

Widdowsons Row, Ruddington

£259,000

  • Period End Town House
  • Two/Three Bedrooms
  • Gas Central Heating & D/Glazing
  • Attractive Enclosed Gardens
  • Central Village Location
  • Council Tax Band B & EPC Rating D

Full Description

This characterful end town house offers a wealth of charm and period features.

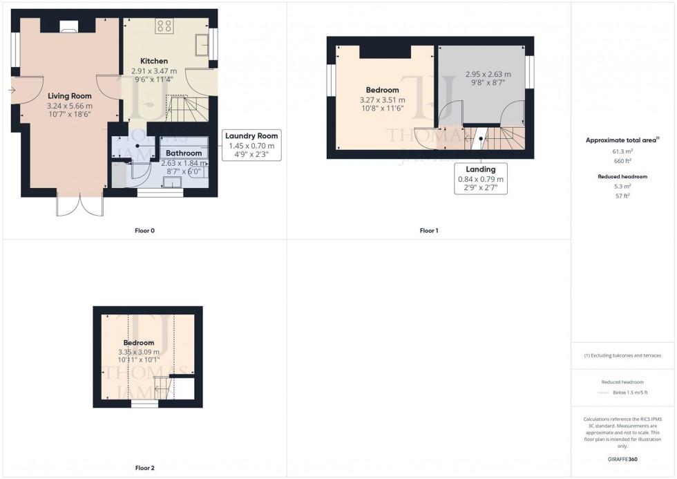
The property provides spacious and well presented accommodation arranged over three floors including; a dual aspect living/dining room with French doors opening to the garden, a fitted kitchen with a utility area, plus a family bathroom on the ground floor, a bedroom and a study on the first floor, plus a further loft room/bedroom (accessed via a staircase from the study) on the second floor.

Benefiting from gas central heating and UPVC double glazing throughout, the property also enjoys attractive gardens to three sides.

Situated close to the heart of the sought after South Nottinghamshire village of Ruddington, the property is within easy reach of a wealth of local facilities including shops, churches, a doctors surgery, restaurants and a country park. Main road routes and local transport links give access to Nottingham, Leicester and neighbouring villages.

Early viewing is essential.

ACCOMMODATION

The UPVC entrance door (with glazed panels) opens directly into the kitchen.

The kitchen has a range of Oak effect wall, drawer and base units, granite work surfaces and matching up-stands, a one and a half bowl stainless steel sink and drainer unit with a mixer tap over, space for a slimline dishwasher, space for a fridge/freezer, plus built-in appliances including; an electric oven, a microwave, and a five ring gas hob with a stainless steel extractor hood over. There is a UPVC double glazed window to the front, Travertine tiled flooring with under-floor heating, recessed down-lights, a radiator, stairs rising to the first floor, an under stairs storage cupboard, access through to the UTILITY AREA (with space and plumbing for a washing machine, and a space for a condensing dryer), and doors opening into the living/dining room, and the ground floor bathroom.

The dual aspect living/dining room has UPVC double glazed windows to the side and rear, a UPVC door leading out to the rear gravelled seating area, and UPVC French doors opening to the main garden at the side. There is a feature cast iron fire place with a coal effect, living flame gas fire set on a slate hearth, stripped floorboards, meter cupboards, a television aerial point, a telephone point, wall light points, and a vertical radiator.

The ground floor bathroom has a three piece suite comprising; a P-shaped bath with a mains fed shower over, a low flush wc, and a pedestal wash hand basin with a swan neck mixer tap over. There is an opaque UPVC double glazed window to the side, Travertine tiled flooring, tiled splash backs, a Victorian style radiator, recessed down-lights, and a cupboard (housing the combination boiler).

On reaching the first floor, the landing has ceiling spotlights, and doors opening into a bedroom, and a study.

The bedroom has a UPVC double glazed window to the rear, a feature cast iron fireplace, ceiling spotlights, and a radiator.

The study has a UPVC double glazed window to the front, ceiling spotlights, a radiator, and door leading to the stairs which rise to the second floor.

On the second floor, the loft room (with restricted height), is currently used as a bedroom. There is a UPVC double glazed window to the side, a Velux window, eaves storage, and ceiling spotlights.

OUTSIDE

At the front of the property, a wooden pedestrian gate gives access to the front and side gardens, and to the front entrance door.

The attractive gardens are fully enclosed and include; a paved patio with raised planted borders, mature shrubs and trees. Steps lead up to a sweeping shaped lawn.

To the rear of the property there is a small gravelled seating area, accessed from the living/dining room.

Council Tax Band

Council Tax Band B. Rushcliffe Borough Council.

Amount Payable 2025/2026 £2,006.39.

Referral Arrangement Note

Thomas James Estate Agents always refer sellers (and will offer to refer buyers) to Premier Property Lawyers, Ives & Co, and Curtis & Parkinson for conveyancing services (as above). It is your decision as to whether or not you choose to deal with these conveyancers. Should you decide to use the conveyancers named above, you should know that Thomas James Estate Agents would receive a referral fee of between £120 and £240 including VAT from them, for recommending you to them.

Floorplan

Floorplan for Widdowsons Row, Ruddington

EPC

EPC

Arrange A Viewing