4 Bedrooms House - Semi-Detached for Sale

The Green & High Street Ruddington, Nottingham

£1,000,000

  • ** UNIQUE INVESTMENT OPPORTUNITY **
  • Three Individual Properties On One Title
  • All Three To Be Purchased Together
  • Renovation Works Required Throughout
  • Central Village Position
  • Council Tax Band (Number 6 - C) & EPC Rating (Number 6 - E)

Full Description

** GUIDE PRICE £1,000,000 - £1,100,000 **

This is a rare and exciting opportunity to acquire a unique site of three properties, all in need of refurbishment, in the sought after village of Ruddington. Within a Conservation Area.

Set in a desirable location, with delightful views over the village green, these characterful cottages are just brimming with potential. The properties are all at different stages of renovation/restoration, offering a blank canvas to restore further and enhance to the specification of the new owner. (Subject to planning approval).

A real opportunity for a purchaser/developer to create three individual dwellings in Ruddington.

Incorporating the OLD SWEET SHOP, (Circa 1880) THE OLD VILLAGE FISH AND CHIP SHOP and a COTTAGE. Approx 300 years old, 2 and 6 The Green are both four bedroomed semi detached properties, whilst 40 High Street is a three bedroom attached Victorian cottage.

It should be noted that all three properties are on one title and the three are to be purchased together.

2 The Green, NG11 6DY

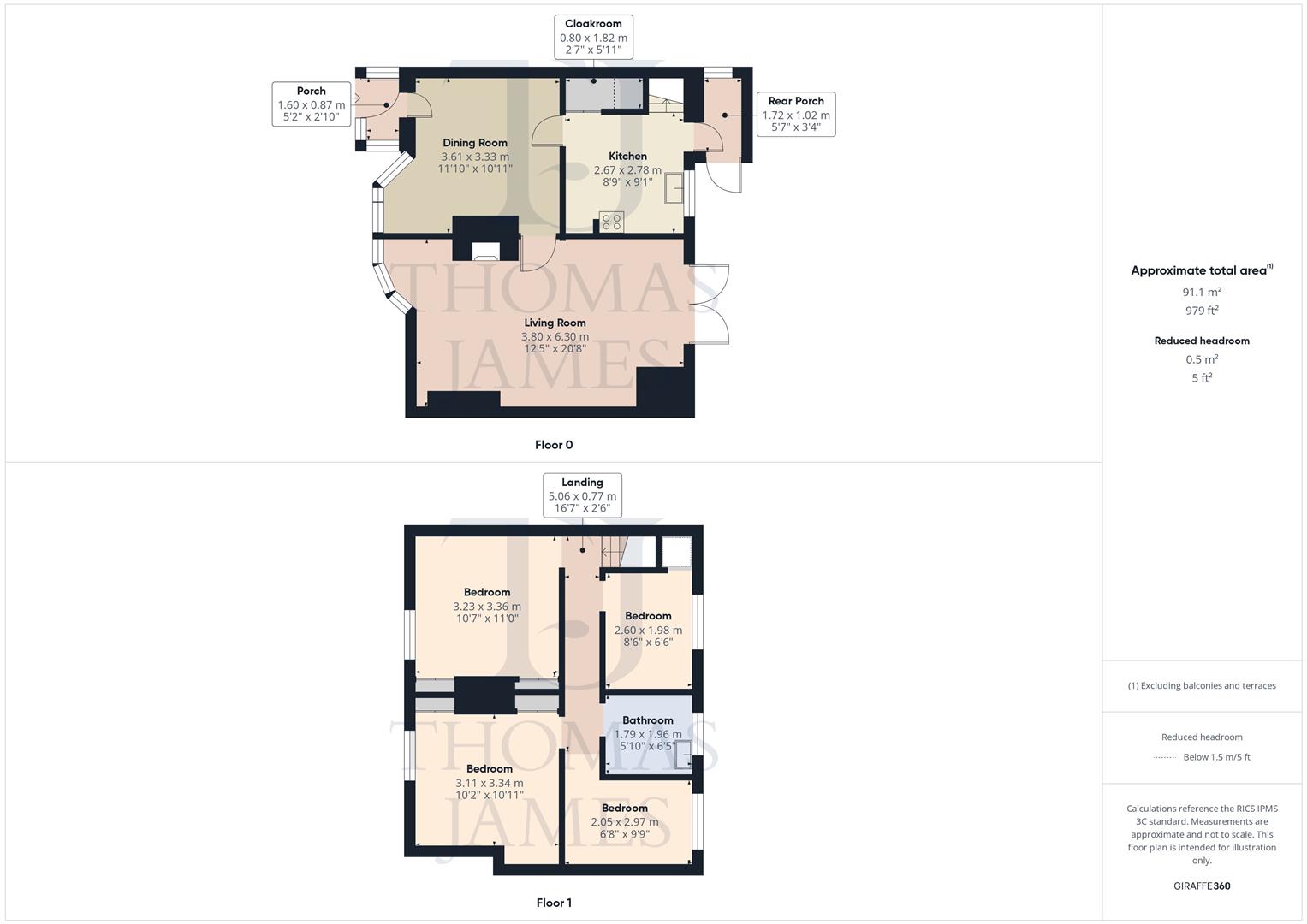
Once a bustling chip shop before World War II, this property now stands ready for a new chapter! This spacious, unique, four bedroom semi detached home offers a rare opportunity to refurbish and transform a piece of local history. Overlooking the green, the property has Brazilian Mahogany double glazed units, and provides accommodation arranged over two floors.

The entrance door opens directly into a dual aspect area with windows to the front and rear, and ample space to create the once original hallway. From here there is access to the lounge, the kitchen dining\family room, and a planned utility and cloakroom. The lounge, with a dual aspect, overlooks the green, has a stunning Inglenook fireplace, and gives access to the kitchen.

The second reception room has windows to the front and rear, and provides a versatile space which could easily lend itself for use as a dining room, a snug, or a family room.

From the kitchen, the stairs rise to the first floor, there is access to the CELLAR, windows to the front and rear, and a door leading outside.

On reaching the first floor, the landing gives access to all four bedrooms, and the spacious family bathroom (all newly plastered). The "must see" is the master bedroom here, which features a vaulted ceiling, sandblasted exposed original beams, and recently pointed exposed brickwork.

6 The Green, NG11 6DY

Formally two separate cottages and with a view directly over the green at the front, this semi detached property is certainly going to make a wonderful family home.

The entrance door here opens into the entrance porch, from which a further entrance door opens to the dining room.

The dining room has a bay window to the front, the central heating boiler is housed behind the fire here and doors open into both the living room and the kitchen.

The dual aspect living room has a bay window to the front, exposed beams, charming recently built inglenook fireplace and French doors opening to the rear.

From the kitchen, the stairs rise to the first floor, there is an area the under stairs which has been prepared for a WET ROOM, a number of kitchen units, a window to the rear, and a door opening to the rear porch. The rear porch has a further door opening to the rear garden.

On reaching the first floor, the landing has doors opening into all four bedrooms (all of which are newly plastered, two overlooking the rear, and two overlooking the green at the front), and the family bathroom, which has been plastered only.

40 High Street

Previously the village sweet shop, this Victorian Cottage provides accommodation arranged over two floors.

The entrance porch (which is under construction, and has plans for a wet room and boot room). This in turn has a door opening into the spacious open plan living/kitchen/dining room. The original shop window and door front The High Street.

The open plan living/kitchen/dining room has windows to the front and side, stairs rising to the first floor with space for a w/c beneath, a door into the snug and access to a cellar.

The snug has a window to the front, and a featured sandblasted brick exposed chimney breast.

On reaching the first floor, the landing has doors into all three bedrooms (all with windows to the front, one also with a window to the side), and the bathroom, which also overlooks the front.

OUTSIDE

2 The Green has vehicular access established off the High Street with a dropped kerb.

To the front of 6 The Green, the kerb has also been dropped, to allow off road parking outside the property.

There is scope for the purchaser to subdivide the land area into gardens for each property.

Please Note

It should be noted that the properties are bought under one title and will be purchased as a whole.

The Vendor has advised that the 'First Fix' electrics have been completed, along with the majority of 'First Fix' plumbing, in 2 and 6 The Green.

Potential purchasers must check this before purchase.

Council Tax Bands

Council Tax Band (Number 6 - C). Rushcliffe Borough Council.

Amount Payable 2025/2026 £2,293.03.

Referral Arrangement Note

Thomas James Estate Agents always refer sellers (and will offer to refer buyers) to Premier Property Lawyers, Ives & Co, and Curtis & Parkinson for conveyancing services (as above). It is your decision as to whether or not you choose to deal with these conveyancers. Should you decide to use the conveyancers named above, you should know that Thomas James Estate Agents would receive a referral fee of between £120 and £240 including VAT from them, for recommending you to them.

Floorplan

Floorplan for The Green & High Street Ruddington, Nottingham Floorplan for The Green & High Street Ruddington, Nottingham Floorplan for The Green & High Street Ruddington, Nottingham

EPC

EPC

Arrange A Viewing