4 Bedrooms House - Semi-Detached for Sale

Deans Court, Cotgrave, Nottingham

£199,500

  • Semi Detached Family Home
  • Four Bedrooms
  • Gas Central Heating
  • Gardens & Garage
  • General Cosmetic Upgrade Required
  • Council Tax Band B & EPC Rating D

Full Description

In need of some general cosmetic upgrade, this four bedroom semi detached property is going to make a wonderful family home!

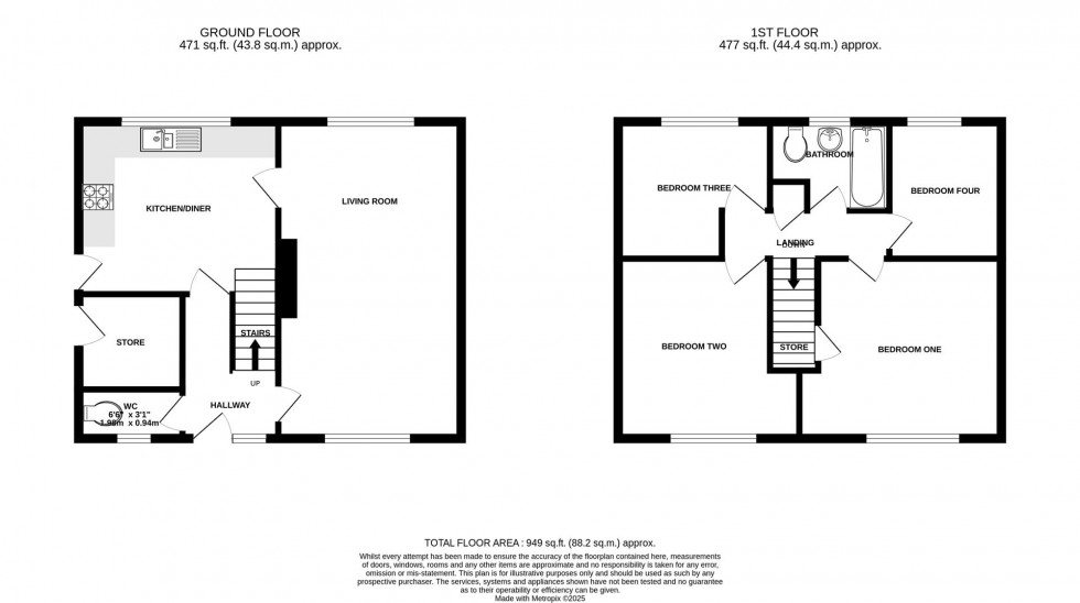
The property provides spacious accommodation arranged over two floors including; an entrance hallway, a dual aspect living room, a fitted kitchen, and a wc on the ground floor, with the first floor landing giving access to two double bedrooms, two single bedrooms, and the family bathroom. An integral store room (accessed from the garden) offers scope to be incorporated into the living accommodation.

Benefiting from gas central heating, and aluminium framed double glazing, the property has gardens to both the front and rear, plus a garage providing off road parking.

Situated in the popular south Nottinghamshire village of Cotgrave, the property is within easy reach of the excellent facilities including the state of the art doctors surgery and library hub, plus primary schools, shops, public houses, a leisure centre with swimming pool, a golf course, and a country park. There are local transport links and main road routes to Nottingham, Leicester, Newark, the surrounding villages, and further afield.

Viewing is essential.

ACCOMMODATION

The aluminium framed entrance door opens into the entrance hallway. The entrance hallway has stairs rising to the first floor, a useful under stairs storage area, and doors into the kitchen, the dual aspect living room, and the ground floor wc.

The kitchen has a range of wall, drawer and base units in white, roll edge work surfaces, a stainless steel sink and drainer unit, space and plumbing for a washing machine, space for a fridge/freezer, and space for a freestanding gas cooker. The floor mounted central heating boiler is situated here, there is a window to the rear, and a door opening to the side.

The ground floor wc has a low flush wc.

The spacious dual aspect living room has windows to the front and rear, and a gas fire (disconnected) in a brick surround.

On reaching the first floor, the landing has a loft access hatch, an airing cupboard housing the hot water cylinder, and doors opening into all four bedrooms, and the family bathroom.

Both double bedrooms overlook the front. (The main bedroom has an over stairs storage cupboard).

The two single bedrooms overlook the rear.

Completing the accommodation, the family bathroom has a three piece suite in white comprising; a bath with a mains fed shower over, a wash hand basin with a vanity unit beneath, and a wc.

OUTSIDE

At the front of the property there is a lawned garden with a hedged boundary, a central tree, established shrubs, and a pathway to the entrance door. There is wrought iron pedestrian gated access to the rear, via a pathway at the side.

The integral store is accessed from the pathway at the side. This store houses the fuse board. There is also a useful storage shed.

To the rear of the property, the low maintenance garden is laid to pea gravelled beds. Timber fence enclosed, the garden has an external tap, and an external light.

The SINGLE GARAGE (with an up and over door), at the rear of the property is accessed from a shared parking area, with vehicular access of Rivermead.

Council Tax Band

Council Tax Band B. Rushcliffe Borough Council.

Amount Payable 2025/2026 £1,993.48.

Referral Arrangement Note

Thomas James Estate Agents always refer sellers (and will offer to refer buyers) to Premier Property Lawyers, Ives & Co, and Curtis & Parkinson for conveyancing services (as above). It is your decision as to whether or not you choose to deal with these conveyancers. Should you decide to use the conveyancers named above, you should know that Thomas James Estate Agents would receive a referral fee of between £120 and £240 including VAT from them, for recommending you to them.

Floorplan

Floorplan for Deans Court, Cotgrave, Nottingham

EPC

EPC

Arrange A Viewing