4 Bedrooms House - Link Detached for Sale

Foxhill, Cotgrave, Nottingham

£375,000

  • Extended Link Detached Home
  • Four Bedrooms
  • Gas C/Heating & UPVC Double Glazing
  • Gardens & Tandem Driveway
  • Cul-De-Sac Position In Popular Village
  • Council Tax Band D & EPC Rating C

Full Description

Thomas James are delighted to offer this extended and well presented link detached home to the market.

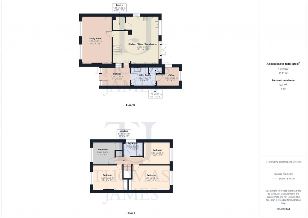
The property provides spacious accommodation arranged over two floors including; a large entrance hallway with a lantern style ceiling, a fitted kitchen/diner with French doors opening to the garden, a good size living room, an office, a utility room, and a wc on the ground floor, with the first floor landing giving access to four bedrooms, and the fitted bathroom.

Benefiting from gas central heating, UPVC double glazing, and oak internal doors (to the ground floor), the property has an east facing garden to the rear, a further garden to the front, plus a tandem driveway providing off road parking for a number of vehicles.

Situated on a sought after cul-de-sac in the popular south Nottinghamshire village of Cotgrave, the property is within easy reach of the excellent facilities including the state of the art doctors surgery and library hub, plus primary schools, shops, public houses, a leisure centre with swimming pool, a golf course, and a country park. There are local transport links and main road routes to Nottingham, Leicester, the surrounding villages, and further afield.

Early viewing is highly recommended to appreciate the standard of accommodation offered!

ACCOMMODATION

The composite entrance door opens to the entrance hallway. This spacious entrance hallway has a lantern style ceiling, and oak internal doors opening to the kitchen/diner, and the utility room.

The utility room has base units, work surfaces, a sink and drainer unit, and space and plumbing for a washing machine. An oak sliding door opens to the ground floor wc, and a further oak internal door opening to the office.

The office has windows to the side and rear, and a vertical radiator.

The ground floor wc has a wash hand basin, and a wc.

In the kitchen/diner, the kitchen area has a range of Shaker style base and drawer units, wood effect work surfaces, a large breakfast bar area, a sink and drainer unit, and integrated appliances including; a dishwasher, a fan assisted oven, and an induction hob with a modern extractor hood over. There is a useful pantry store (with shelving), space for a fridge/freezer, and windows to the side and rear. The kitchen area has open access to the dining area where there is a vertical radiator, stairs rising to the first floor, an oak and glass panelled door opening to the living room, and French doors opening to the garden.

The bright living room has two windows to the front (both with made to measure shutters).

On reaching the first floor, the landing has a loft access hatch (giving access to the partially boarded loft space above, which has a light and ladder), a shelved airing cupboard housing the Vaillant combination boiler, and doors opening into all four bedrooms, and the family bathroom.

Bedroom one is double in size, has a window to the rear, and a fitted over stairs wardrobe.

Bedroom two is also double in size, has a window to the front, and a fitted wardrobe.

Bedroom three has a window to the rear.

Bedroom four has a window to the front, and has a store cupboard with shelving.

Completing the accommodation, the family bathroom has a three piece suite in white comprising; a P-shaped bath with a shower and glazed screen over, plus a vanity unit incorporating the wash hand basin and the concealed flush wc. There is a shaver point here.

OUTSIDE

At the front of the property there is a lawned garden, with shrub beds, and an apple tree. There is wrought iron pedestrian gated access to the rear garden.

The tandem driveway at the side provides off road parking for up to two vehicles, and in turn gives access to the entrance door.

There is a good size east facing garden to the rear of the property, which includes; two patio seating areas, ideal for entertaining, a lawned area, a hard standing area for a shed, a vegetable plot, fruit bushes, and shrub beds. With hedged and timber fenced boundaries, the garden also has external lighting.

Council Tax Band

Council Tax Band D. Rushcliffe Borough Council.

Amount Payable 2025/2026 £2,563.04.

Referral Arrangement Note

Thomas James Estate Agents always refer sellers (and will offer to refer buyers) to Premier Property Lawyers, Ives & Co, and Curtis & Parkinson for conveyancing services (as above). It is your decision as to whether or not you choose to deal with these conveyancers. Should you decide to use the conveyancers named above, you should know that Thomas James Estate Agents would receive a referral fee of between £120 and £240 including VAT from them, for recommending you to them.

Floorplan

Floorplan for Foxhill, Cotgrave, Nottingham

EPC

EPC

Arrange A Viewing