3 Bedrooms House - Semi-Detached for Sale

St. Marys Crescent, Ruddington, Nottingham

£365,000

  • Extended Semi Detached Home
  • Three Bedrooms
  • Double Glazing & Gas C/Heating
  • Gardens & Driveway
  • Popular South Nottinghamshire Village
  • Council Tax Band B & EPC Rating D

Full Description

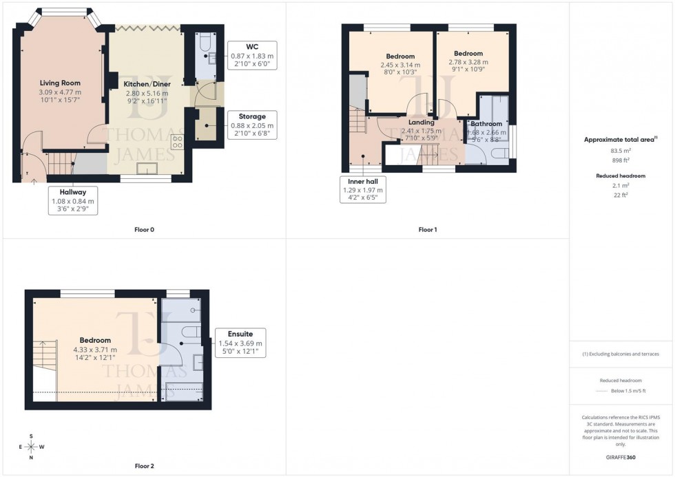
This extended and beautifully well presented semi detached home provides accommodation arranged over three floors including; an entrance hallway, a lounge, a breakfast kitchen with bi-fold doors opening to the rear garden, plus a utility area and a wc on the ground floor, two bedrooms and a family bathroom on the first floor, and a master bedroom with an en-suite bathroom on the second floor. This second floor conversion having been completed within the last 18 months.

Benefiting from gas central heating and double glazing, the property has an enclosed south facing garden to the rear, a low maintenance garden to the front, plus a block paved driveway providing off road parking for up to three vehicles.

Situated in the highly regarded south Nottinghamshire village of Ruddington, the property is close to a local park, and within easy reach of a wealth of facilities including shops, churches, a doctors surgery, restaurants and a country park. Main road routes and local transport links give access to Nottingham, Leicester and neighbouring villages.

Viewing is highly recommended.

ACCOMMODATION

The composite entrance door opens into the entrance hallway. The entrance hallway has stairs rising to the first floor, ceiling light points, and doors into the lounge, and the breakfast kitchen.

The lounge has a bay window to the front, a feature media wall, a radiator, a ceiling light point, and coving.

The breakfast kitchen has a range of wall, drawer and base units, a Belfast sink with a drainer and a mixer tap over, space for a fridge/freezer, plus an electric oven, and a a four ring hob with a Cooke & Lewis extractor hood over. There is a window to the front, a tall storage cupboard, an under stairs larder/storage cupboard, a feature radiator, tiled flooring, access to the utility area, and bi-fold doors opening to the rear garden.

The utility area has space and plumbing for a washing machine. The central heating boiler is housed here, and there is a door opening to the ground floor wc.

The ground floor wc has a wash hand basin set in a vanity unit with a mixer tap over, and a wc. There is spot lighting here, tiled flooring, and a heated towel rail.

On reaching the first floor, the landing has a window to the front, and doors opening into two bedrooms, and the bathroom. A further door leads to the stairs rising to the loft conversion on the second floor.

The bathroom has a bath with a rainfall shower and a glazed screen over, a wash hand basin set in a vanity unit with a mixer tap over, and a wc. There is a window to the side, spot lighting, coving, and a heated towel rail.

Bedroom two has a window to the rear, a radiator, and a ceiling light point.

Bedroom three has a window to the rear, a radiator, a ceiling light point, and a built in under stairs storage cupboard.

The second floor landing has a window to the front, and gives access to bedroom one.

Bedroom one has a window to the rear, spot lighting, a radiator, eaves storage cupboards, and access to an en-suite bathroom. The en-suite bathroom has a bath with a shower attachment over, a shower cubicle with a rainfall shower, and a wash hand basin set in a vanity unit. There is a window to the rear, a heated towel rail, tiled flooring, and part tiled walls.

OUTSIDE

The block driveway at the front of the property provides off road parking for up to three vehicles, and leads in turn to the entrance door. There is a low maintenance garden adjacent, laid mainly to pebbled beds.

There is a good size south facing garden to the rear of the property which includes; a decked seating area, a patio seating area, and a lawned area. Fully enclosed, the garden then has gated access to an additional garden area.

Council Tax Band

Council Tax Band B. Rushcliffe Borough Council.

Amount Payable 2025/2026 £2,006.39.

Referral Arrangement Note

Thomas James Estate Agents always refer sellers (and will offer to refer buyers) to Premier Property Lawyers, Ives & Co, and Curtis & Parkinson for conveyancing services (as above). It is your decision as to whether or not you choose to deal with these conveyancers. Should you decide to use the conveyancers named above, you should know that Thomas James Estate Agents would receive a referral fee of between £120 and £240 including VAT from them, for recommending you to them.

Floorplan

Floorplan for St. Marys Crescent, Ruddington, Nottingham

EPC

EPC

Arrange A Viewing