3 Bedrooms House - Semi-Detached for Sale

Home 29, Sylvan, Loughborough Road, Ruddington, Nottingham

£450,000

  • Semi Detached Family Home
  • Three Bedrooms (One En-Suite)
  • Open Plan Living With French Doors To Garden
  • Separate Living Room
  • Spacious Family Bathroom
  • Upgraded Kitchen Slab Doors & Tiling To Bathrooms
  • (NB-Images & CGIs Are Used For Illustrative Purposes Only)

Full Description

5% DEPOSIT PAID WORTH £22,500* AND OVER £1,500 IN LUXURY UPGRADES*.
(*T&Cs apply. Subject to build status)

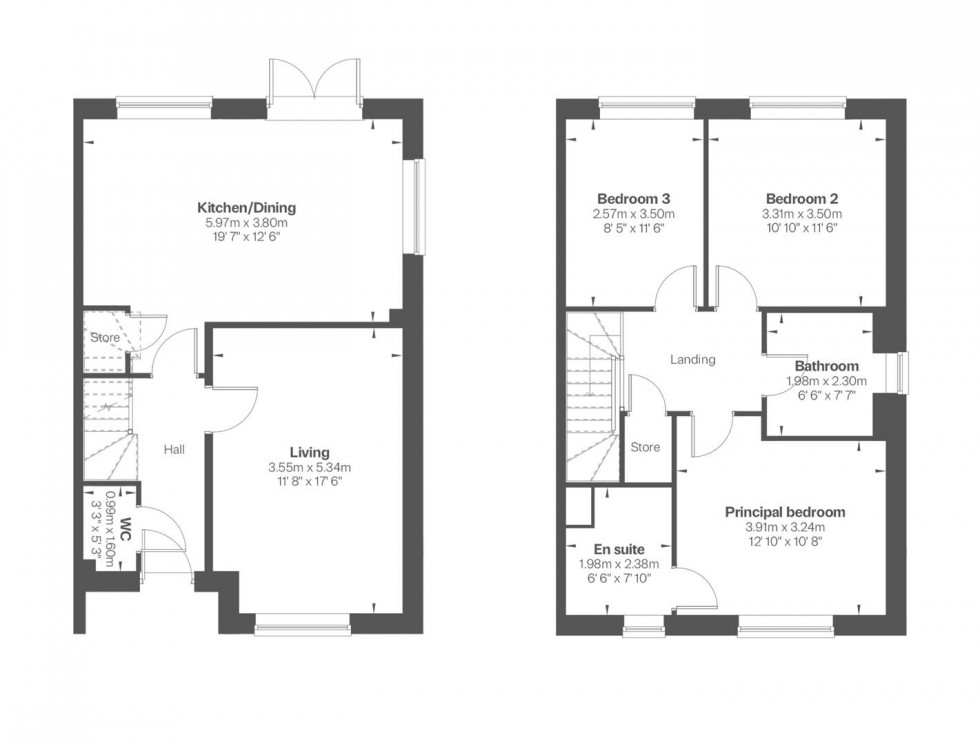
This Foxmere design semi detached family home provides approximately 1159 sq ft of accommodation arranged over two floors and including; an entrance hall, a living room, a kitchen/dining area with French doors opening to the garden, plus a wc on the ground floor, with the first floor landing giving access to three well proportioned bedrooms (one with an en-suite), plus the family bathroom.

Upgraded kitchen slab doors -upgraded tiling to en suite and main bathroom

Benefiting from PVCu double glazed windows, Hive heating, solar PV panels, and an electric vehicle charger, the property will have slabbed pathways, and turf to the front and rear. Luxury upgrades include kitchen slab doors and tiling to en suite and main bathrooms.

(Please note - Images and CGIs are used for illustrative purposes only)

Sylvan

Set within two and a half hectares of mature, tree lined grounds, Sylvan is a thoughtfully designed development of just 36 homes.

Designed with comfort and the requirements of modern living in mind, these striking 3, 4 and 5 bedroom homes boast contemporary architecture, spacious accommodation, and beautiful gardens and driveways. There are practical touches including useful boot rooms and utility rooms, dedicated EV charging points, and high performance solar PV panels.

Situated at the edge of the highly regarded south Nottinghamshire village of Ruddington, Sylvan is within easy reach of a wealth of facilities in the village including; shops, schools, traditional pubs, coffee shops, churches, a country park and a golf course. Main road routes ensure easy access to nearby West Bridgford, and neighbouring villages, as well as Nottingham city centre, and the M1.

Move With Confidence

Move with confidence. Choose with confidence. Buy with confidence. 5% deposit paid worth £22,500* and over £1,500 in luxury upgrades*.

(*T&Cs apply. Subject to build status)

Management Fee

An annual management fee of £448.67 (ungated area), and £748.67 (gated areas) is levied on this development.

Images and CGIs

Images and CGIs are used for illustrative purposes only.

Additionally, the kitchen image used displays a show home. The image is used for illustrative purposes only. (Images show other developments)

Referral Arrangement Note

Thomas James Estate Agents always refer sellers (and will offer to refer buyers) to Premier Property Lawyers, Ives & Co, and Curtis & Parkinson for conveyancing services (as above). It is your decision as to whether or not you choose to deal with these conveyancers. Should you decide to use the conveyancers named above, you should know that Thomas James Estate Agents would receive a referral fee of between £120 and £240 including VAT from them, for recommending you to them.

Floorplan

Floorplan for Home 29, Sylvan, Loughborough Road, Ruddington, Nottingham

Arrange A Viewing