4 Bedrooms House - Detached for Sale

Home 7, Sylvan, Loughborough Road, Ruddington, Nottingham

£890,000

  • Detached Family Home
  • Four Bedrooms (Two En-Suite & One With Dressing Area)
  • Separate Living Room & Ground Floor Study
  • Utility Room Offering Further Storage & Convenient Side Door Access
  • Detached Double Garage & Private Driveway
  • (NB- Images & CGIs Are Used For Illustrative Purposes Only)

Full Description

RECEIVE A £30,000* DEPOSIT BOOST.
(*T&Cs apply. Subject to build status).

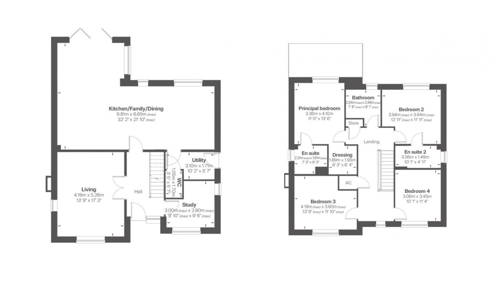
This MEADOWCROFT design is an expansive detached family home which provides approximately 2030 sq ft of accommodation arranged over two floors and including; an entrance hall, a living room, a study, a kitchen/dining area with bi-fold doors opening to the garden, plus a wc, and a utility room on the ground floor, with the first floor landing giving access to four well proportioned bedrooms (two with an en-suite, one also with a dressing area), plus the family bathroom.

Benefiting from PVCu double glazed windows, Hive heating, solar PV panels, and an electric vehicle charger, the property will have slabbed pathways, turf to the front and rear, plus a detached double garage and private driveway.

(Please note - Images and CGIs are used for illustrative purposes only)

Sylvan

Set within two and a half hectares of mature, tree lined grounds, Sylvan is a thoughtfully designed development of just 36 homes.

Designed with comfort and the requirements of modern living in mind, these striking 3, 4 and 5 bedroom homes boast contemporary architecture, spacious accommodation, and beautiful gardens and driveways. There are practical touches including useful boot rooms and utility rooms, dedicated EV charging points, and high performance solar PV panels.

Situated at the edge of the highly regarded south Nottinghamshire village of Ruddington, Sylvan is within easy reach of a wealth of facilities in the village including; shops, schools, traditional pubs, coffee shops, churches, a country park and a golf course. Main road routes ensure easy access to nearby West Bridgford, and neighbouring villages, as well as Nottingham city centre, and the M1.

Move With Confidence

Move with confidence. Choose with confidence. Buy with confidence. Receive a £30,000* deposit boost.

(*T&Cs apply. Subject to build status).

Management Fee

An annual management fee of £448.67 (ungated area), and £748.67 (gated areas) is levied on this development.

Images & CGIs

Images and CGIs are used for illustrative purposes only.

(Images show other developments)

Referral Arrangement Note

Thomas James Estate Agents always refer sellers (and will offer to refer buyers) to Premier Property Lawyers, Ives & Co, and Curtis & Parkinson for conveyancing services (as above). It is your decision as to whether or not you choose to deal with these conveyancers. Should you decide to use the conveyancers named above, you should know that Thomas James Estate Agents would receive a referral fee of between £120 and £240 including VAT from them, for recommending you to them.

Floorplan

Floorplan for Home 7, Sylvan, Loughborough Road, Ruddington, Nottingham

Arrange A Viewing