3 Bedrooms House - Semi-Detached for Sale

Abingdon Drive, Ruddington, Nottingham

£365,000

  • Three Bedroom Semi Detached Home
  • Recently Renovated Throughout
  • Gas C/Heating & UPVC D/Glazing
  • Gardens & Gated Off Road Parking
  • No Upward Chain. Part Exchange May Be Considered
  • Council Tax Band B & EPC Rating D

Full Description

**** COMING SOON *****
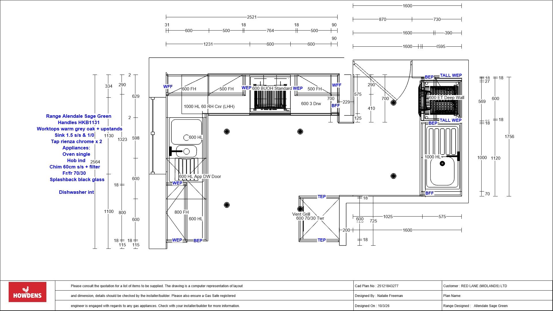
This extended semi detached home has been subject to renovation recently, with works having included a newly fitted kitchen and bathroom, a newly installed combination boiler, newly installed double glazing, new floorings, and more!

The property provides accommodation arranged over two floors including; an entrance hallway, a lounge, and an open plan breakfast kitchen/living area with French doors opening to the rear garden on the ground floor, with the first floor landing giving access to three bedrooms, and the bathroom.

The property has an enclosed garden and a gated off road parking area to the rear, plus a further garden to the front.

Situated in the highly regarded south Nottinghamshire village of Ruddington, the property is within easy reach of a wealth of local facilities including shops, churches, a doctors surgery, restaurants and a country park. Main road routes and local transport links give access to Nottingham, Leicester and neighbouring villages.

Offered to the market with no upward chain. The vendor of the property has also indicated that they may consider part exchange. Viewing is essential!

ACCOMMODATION

The canopied entrance door opens into the entrance hallway. The entrance hallway has newly fitted laminate flooring, stairs rising to the first floor, an under stairs storage cupboard, a radiator, a door into the lounge, and access to the open plan breakfast kitchen/living area.

The lounge has a bay window to the front, an open fireplace, and new flooring.

The open plan breakfast kitchen/living area has a newly fitted Howdens kitchen including a range of wall, drawer and base units, a stainless steel sink and drainer unit with a mixer tap over, and built in appliances including a fridge/freezer, an oven, and a hob. There is a radiator, a door into the utility room, and French doors, with windows to both sides, opening to the rear garden.

The utility room has space and plumbing for a washing machine, space for a dryer, and a door opening to the rear garden.

On reaching the first floor, the landing has doors into all three bedrooms, and the bathroom.

The bathroom has a bath, a separate shower cubicle, plus a vanity unit incorporating the wash hand basin and the wc. There are two windows to the side, and vinyl floor covering.

Bedroom one has a bay window to the front, a radiator, and a ceiling light point.

Bedroom two has a window has a window to the rear, a radiator, and a ceiling light point.

Completing the accommodation, bedroom three has a window to the side, a radiator, and a ceiling light point.

OUTSIDE

At the front of the property there is a gated access to the lawned garden, with a hedged boundary, and a pathway leading to the canopied entrance door.

To the rear of the property there is gated access to a parking space. The garden extends to a lawned area.

Council Tax Band

Council Tax Band B. Rushcliffe Borough Council.

Amount Payable 2026/2027 £2,085.82.

Referral Arrangement Note

Thomas James Estate Agents always refer sellers (and will offer to refer buyers) to Premier Property Lawyers, Ives & Co, and Curtis & Parkinson for conveyancing services (as above). It is your decision as to whether or not you choose to deal with these conveyancers. Should you decide to use the conveyancers named above, you should know that Thomas James Estate Agents would receive a referral fee of between £120 and £240 including VAT from them, for recommending you to them.

Floorplan

Floorplan for Abingdon Drive, Ruddington, Nottingham

EPC

EPC

Arrange A Viewing